
Ciudad Autónoma de Buenos Aires
Realizamos el relevamiento de todas las Autopistas Urbanas de la C.A.B.A. pertenecientes a la Red de AUSA, 300km/carril con el objetivo de analizar las condiciones superficiales actuales de serviciabilidad, seguridad y confort. Se realizó la medición de rugosidad, ahuellamiento, fricción y detección de fallas superficiales con equipos de alto rendimiento.

Ciudad Autónoma de Buenos Aires
Llevamos a cabo las siguientes inspecciones dentro de la red urbana de Capital Federal. Paso bajo nivel en la calle Fomentista sobre vías de FFCC Mitre, puente sobre elevado Bosh sobre vías del FFCC Roca y Autopista Parque Dellepiane.

Provincia de Buenos Aires
Diseñamos las obras civiles del Parque Eólico La Escondida. Diseño vial para transporte y montaje de aerogeneradores, ingeniería civil de edificios del parque, diseño de plataformas. Gestión de habilitaciones y permisos y control de obra.

Provincia de Buenos Aires
Diseñamos las obras civiles del Parque Eólico Olavarría. Diseño vial para transporte y montaje de aerogeneradores, ingeniería civil de edificios del parque, diseño de plataformas. Gestión de habilitaciones y permisos y control de obra.

Provincia de Buenos Aires
Diseñamos las obras civiles del Parque Eólico La Victoria. Diseño vial para transporte y montaje de aerogeneradores, ingeniería civil de edificios del parque, diseño de plataformas. Gestión de habilitaciones y permisos y control de obra.

Provincia de Formosa
Llevamos a cabo la actualización del proyecto ejecutivo de duplicación de calzada de la Ruta Nacional N° 11 en el tramo Rotonda de la Virgen-Intersección con la Ruta Nacional N° 81. La longitud total del proyecto es de 10 km y abarca 4 puentes de 200 metros.

Provincia de Corrientes
Llevamos a cabo la inspección de la rehabilitación de 80 km de la Ruta Provincial N° 126. La obra contempla ensanche, bacheo, sellado de fisuras, repavimentación y reconstrucción total de calzada.

Provincia de Chubut
Desarrollamos el proyecto ejecutivo de construcción de la obra básica y pavimentación de la Ruta Nacional N°259, en el tramo Ruta Provincial Nº17 y límite con la Republica de Chile. La longitud total del proyecto es de 32 km y contempla 3 puentes.

Provincia de Buenos Aires
Realizamos una evaluación de estado superficial de 200 km/carril de la Ruta Nacional N° 3 a través de las mediciones de rugosidad, ahuellamiento e identificación de baches y fisuras de nuestro equipo de alto rendimiento.

Provincia de Buenos Aires
Realizamos un relevamiento del estado actual del pavimento de hormigón a lo largo de 216 km de calles del partido de San Miguel. La información obtenida por nuestro equipo de alto rendimiento luego fue procesada con el software de relevamiento de fallas que hemos desarrollado.

Provincia de Buenos Aires
Llevamos a cabo mediciones de rugosidad y ahuellamiento de las obras I y III del Acceso Oeste con nuestro perfilómetro láser RSP Mk-III Dynatest. El total de medición fue de 102 km/carril.

Provincia de Buenos Aires
Diseñamos proyectos ejecutivos para 18 obras del corredor Sur por un total de 300 km.

Provincia de Chaco
Realizamos el proyecto ejecutivo de duplicación de calzada de la Ruta Nacional N° 16, en la provincia de Chaco. Tiene una longitud aproximada de 110 km e incluye 20 intercambiadores de tránsito y 3 variantes de traza.

Provincia de Buenos Aires
Desarrollamos el proyecto ejecutivo del intercambiador de la Ruta Provincial N° 24 y Acceso Oeste y del intercambiador de la Ruta Provincial N° 28 y Acceso Oeste.

Provincia de Santa Fe
Diseñamos el proyecto ejecutivo variante a la localidad de Sunchales, Ruta Nacional N° 34, con una longitud total de 20km.

Provincia de La Pampa
Desarrollamos el proyecto ejecutivo de la variante de la Ruta Nacional N° 35, con una longitud total de 30 km.

Provincia de La Pampa
Llevamos a cabo el proyecto de duplicación de calzada de la Ruta Nacional N° 5 en la Ciudad de Santa Rosa, La Pampa. La longitud total aproximada del tramo proyectado es de 30 km y contempla 4 intercambiadores de tránsito a distinto nivel.

Ciudad Autónoma de Buenos Aires
Elaboramos el proyecto ejecutivo de las variantes de la Autopista Illia para la nueva traza licitada por AUSA.

Ciudad Autónoma de Buenos Aires
Realizamos una consultoría para el seguimiento del proyecto ejecutivo y la ejecución de las obras del Paseo del Bajo. El enfoque estuvo orientado al análisis de riesgo de los distintos aspectos técnicos y administrativos de la obra.

Provincia de Formosa
Realizamos el proyecto ejecutivo de la rehabilitación de la calzada existente de la obra “construcción de autovía y multitrocha” en la Ruta Nacional N° 11.

Provincia de Formosa
Desarrollamos el proyecto ejecutivo de la construcción de autovía y multitrocha en la Ruta Nacional N°11, con una longitud total de 80 km. La obra incluye 11 intercambiadores y 6 puentes.

Ciudad de Formosa
Llevamos a cabo un estudio que analiza los impactos en el tránsito vehicular generados por la peatonalización de calles céntricas de la ciudad. A su vez se proponen medidas de mitigación con el fin de desarrollar urbanísticamente el microcentro.

Ciudad de Formosa
Elaboramos un plan de pavimentación, mejora de calles de tierra y rehabilitación de todas las calles pavimentadas de la ciudad de Formosa.

Provincia de Formosa
Realizamos el proyecto de un puente urbano de 110 metros de longitud que permite el paso a distinto nivel entre la Ruta Nacional Nº 11, circunvalación y el acceso a la ciudad.

Ciudad Autónoma de Buenos Aires
Supervisión de la obra de reemplazo de puente existente en Av. General Paz y Av. Lope de Vega.

Provincia de Buenos Aires
Llevamos a cabo la supervisión de la obra de ensanche y pavimentación del acceso al puerto de Campana, de una longitud 2,5 Km.

Provincia de Formosa
Desarrollamos el proyecto ejecutivo de las obras básicas y pavimentación de la Ruta Provincial N° 14 en el tramo empalme Ruta Provincial Nº 2 - empalme Ruta Provincial Nº 3. La longitud total del proyecto fue de 50 km

Provincia de Buenos Aires
Elaboramos el proyecto ejecutivo y de detalle del distribuidor de tránsito a construirse a la altura del km 42,6 de la Autopista del Oeste – Ruta Nacional N°7. La longitud total del proyecto fue de 1.5 Km e incluyó ramas de entrada y salida, carril de aceleración, tercer carril y un puente curvo de 42 metros de longitud.

Ciudad Autónoma de Buenos Aires
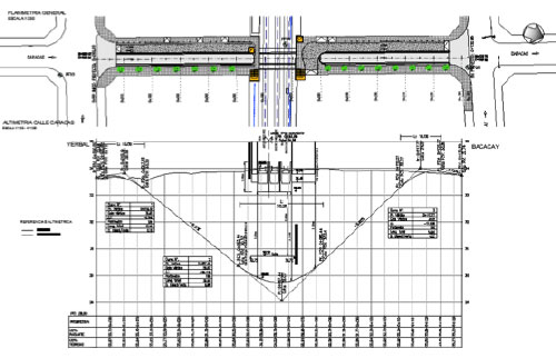
Elaboramos el proyecto de los pasos bajo nivel de las calles Terrada y Caracas -bajo las vías del Ferrocarril Sarmiento- y su respectivo estudio de impacto ambiental.

Ciudad Autónoma de Buenos Aires
Realizamos la inspección y revisión de proyecto ejecutivo de la construcción de una rotonda en la Av. Rafael Obligado y el empalme de Av. Costanera.

Ciudad Autónoma de Buenos Aires
Realizamos la inspección y revisión de proyecto ejecutivo de las obras de ampliación y ejecución de nueva calzada de hormigón de la Av. Pedro de Mendoza y la repavimentación del nudo Brasil.

Provincia de Formosa
Elaboramos el proyecto ejecutivo de la obra básica y pavimentación de la Ruta Provincial Nº 4 (tramo Laguna Naick Neck – intersección ruta nacional N° 86 Buena Vista) y el proyecto ejecutivo de la ruta provincial Nº 8 (tramo Siete Palmas- Intersección Ruta Nº 2, Camino vecinal Sol de Mayo). La longitud total del proyecto fue de 55 km.

Provincia de Formosa
Llevamos a cabo el proyecto ejecutivo de la obra básica y pavimentación de la Ruta Provincial N° 9 en el tramo intersección Ruta Provincial N° 39 - intersección Ruta Provincial N° 37. La longitud total del proyecto fue de 76 km y también incluyó dos puentes, uno sobre el Riacho Teuquito (40 metros) y otro sobre el canal Aibal (30 metros).

Provincia de Formosa
Desarrollamos el proyecto ejecutivo de la obra básica y pavimentación de la Ruta Provincial N° 39 en el tramo Juárez- Intersección Ruta Provincial Nº 9. La longitud total del proyecto fue de 40 km. Además contempló un puente de 40 metros de longitud.

Provincia de Formosa
Elaboramos el proyecto ejecutivo de la obra básica y pavimentación de la Ruta Provincial N° 37 en el tramo Laguna Yema- Intersección Ruta Provincial N° 9 (longitud total 50 km)

Provincia de Formosa
Llevamos a cabo la inspección de la construcción de 12 km de colectora a ambos lados de la Ruta Nacional Nº11 en la Ciudad de Formosa, desde la Rotonda de la Cruz a la Rotonda de la Virgen.

Brasil
Realizamos asistencia técnica para el desarrollo de Due Diligence de 9 concesiones viales en Brasil. El trabajo incluyó el análisis de los costos de inversión (OPEX) y de mantenimiento (CAPEX) así como la elaboración de un plan de inversiones para 25 años de gestión.