
CABA
We carried out a survey of all the Urban Highways of the C.A.B.A. belonging to the AUSA Network, totaling 300 lane-kilometers, with the aim of analyzing the current surface conditions regarding serviceability, safety, and comfort. Measurements of roughness, rutting, and friction were taken, and surface defects were detected using high-performance equipment.

CABA
We carried out the following inspections within the urban network of the Federal Capital. This included the underpass on Fomentista Street over the Mitre Railway tracks, the Bosh overpass bridge over the Roca Railway tracks, and the Dellepiane Parkway.

Buenos Aires
We designed the civil works for the La Escondida Wind Farm. This included road design for the transport and assembly of wind turbines, civil engineering for the park's buildings, and platform design. We also managed permits and authorizations and provided construction control.

Buenos Aires
We designed the civil works for the Olavarría Wind Farm. This included road design for the transport and assembly of wind turbines, civil engineering for the park's buildings, and platform design. We also managed permits and authorizations and provided construction control.

Buenos Aires
We designed the civil works for the La Victoria Wind Farm. This included road design for the transport and assembly of wind turbines, civil engineering for the park's buildings, and platform design. We also managed permits and authorizations and provided construction control.

Formosa
We made the update of the executive project of widening National Route N° 11 stretch Rotonda de la Virgen - Intersection with National Route N° 81. The total length of the project is about 10 km and it includes 4 bridges of 200 meters.

Corrientes
We inspected the refurbishment of 80 km of Provincial Route N° 126. The jobs consider widening, patching, sealing of cracks, resurfacing and total road reconstruction.

Chubut
We developed the executive project of basic works, building and paving of National Route N° 259, stretch National Route N° 17-border with Chile. The project total length is about 32 km and it includes 3 bridges.

Buenos Aires
We made a surface condition evaluation of 200 km/lane of National Route N° 3. We used our high technology equipment which allows us to measure roughness, rutting, bumps and cracks.

Buenos Aires
We made a survey of concrete paving condition along 216 km of San Miguel Town streets. The information collected by our equipment was then processed by our failure gathering software

Buenos Aires
We measured roughness and rutting of West Highway Works I and III with our laser profilometer RSP Mk-III Dynatest. The study was made along 102 km/lane.

Buenos Aires
We designed executive projects for 18 works of Southern Corridor (300 km).

Chaco
We carried out the executive project of widening National Route N° 16 in Chaco Province. The project has an approximate length of 110 km and includes 20 transit exchangers and 3 road layout diversions.

Buenos Aires
We developed the executive Projects of the transit exchangers of Provincial Route N°24 and Provincial Route N°28 with West Highway.

Santa Fe
We designed the executive project to change the layout of National Rute N° 34 in Sunchales, Santa Fe. The total length of the project was 20 km.

La Pampa
We developed the project to change the layout of National Route N° 35, with a total lenght of 30 km.

La Pampa
We carried out the project of widening National Route N° 5 in Santa Rosa, La Pampa. The designed stretch total length was 30 km and included 4 transit exchangers.

Buenos Aires City
We developed the executive project to change the layout of Illia Highway for the new stretch tendered by AUSA.

Buenos Aires City
We delivered consulting services for the executive project and the implementation of the works of Paseo del Bajo. We focused on the risk analysis of different technical and administrative aspects.

Formosa
We carried on the executive project for the refurbishment of National Route N° 11.

Formosa
We developed the executive project for the construction of the highway and multiple lane road along 80 km of the National Route N° 11. The works includes 11 exchangers and 6 bridges.

Formosa City
We developed a study to analyse the impacts of the pedestrianization of downtown streets in the transit of Formosa City. We also proposed alternatives to mitigate effects and promote urban development of the downtown area.

Formosa
We developed the project to build an urban bridge of 110 km which allows the crossing in different levels between National Route N°11, bypass road and city access.

Formosa
We developed the project to build an urban bridge of 110 km which allows the crossing in different levels between National Route N°11, bypass road and city access.

Buenos Aires City
We made the inspection during the replacement of the old bridge over General Paz Avenue and Lope de Vega Avenue.

Buenos Aires
We made the supervision of the widening and paving works of 2.5 km along the access to Campana harbour.

Formosa
We developed the executive project of the basic works and paving of National Route N° 14, between Provincial Route N° 2 and Provincial Route N° 3. The total length of the project was 50 km.

Buenos Aires
We made the executive project and the detail project of the traffic distributor to be built on Km N° 42,6 of the West Highway-National Route N° 7. The total length of the project was 1,5 km and it included input and output lanes, acceleration lane, third lane and a curved bridge of 42 meters.

Buenos Aires
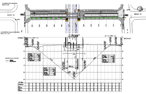
We developed the projects of the crossings of Terrada and Caracas streets under Sarmiento railways and its environmental impact studies.

Buenos Aires
We carried on the inspection and the revision of the executive project of the Fast Track Roundabout to be built on Rafael Obligado Avenue.

Buenos Aires City
We made the inspection and revision of the executive project of the widening and building of a new concrete lane in Pedro de Mendoza Avenue and the repaving of Brasil Avenue node.

Formosa
We made the executive project for the basic works and paving of Provincial Route N° 4 (between Naick Neck Lagoon and National Route N° 86, Buena Vista) and the executive project of Provincial Route N° 8 (between Siete Palmas and Route N° 2, Camino Vecinal Sol de Mayo). The total length of the project was 55 km.

Formosa
We made the executive project for the basic works and paving of Provincial Route N° 9 between Provincial Route N° 39 and Provincial Route N° 37. The total length of the project was 76 km and it included two bridges: one over Riacho Teuquito (40 meters) and the other over Canal Aibal (30 meters).

Formosa
We develop the executive project for the basic works and paving of Provincial Route N° 39 between Juárez - Provincial Route N°9. The total length of the project was 40 km and it included a bridge of 40 meters.

Formosa
We made the executive project for the basic works and paving of Provincial Route N° 37 between Laguna Yema and Provincial Route N°9 (50 km total lenght).

Formosa
We carried on the inspection of the construction of 12 km of roads along both sides of National Route N° 11 between Rotonda de la Cruz and Rotonda de la Virgen.

Brazil
We provided technical support for the development of Due Diligence of 9 road concessions in Brazil. The work included the investment cost analysis (OPEX) and maintenance costs (CAPEX) and also the design of an investment plan for 25 years.